Lisboa, Cascais, Cascais e Estoril, Birre (Cascais)
Moradia V6 independente em Birre|Cascais com piscina
Início de Construção: Agosto de 2024
Término de Construção: Dezembro: 2025
Área de terreno: 695m2
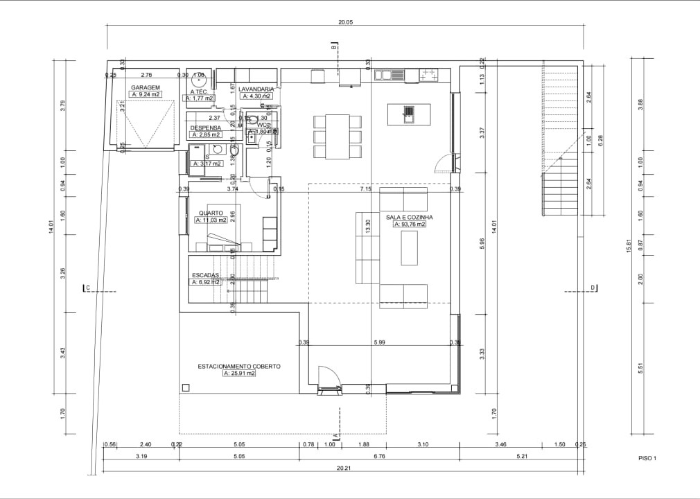
Área de implantação: 220m2
Área de construção: 300m2
Esta moradia independente de tipologia T5, está localizada em zona nobre de residências.
Próxima do Colégio Internacional Kings Scool
Construída num estilo contemporâneo de alto padrão em qualidade e acabamentos.
Composta por dois pisos, estacionamento coberto e garagem box, piscina e área de lazer.
R/C com uma ampla sala de estar em open space com a cozinha equipada.
Uma suite de hóspedes e uma casa de banho social.
Lavandaria, despensa e área técnica.
1º andar com uma suite master com closet, três quartos, uma casa de banho, um espaço em Opens Space, varandas
Localizada em Birre a poucos minutos do centro de Cascais.
A vila de Cascais situa-se a cerca de 30 minutos de Lisboa, junto à orla marítima, encontra-se entre a soalheira baía de Cascais e a majestosa Serra de Sintra. É sem dúvida uma das mais belas e completas cidades de Portugal.
Envolto numa atmosfera requintada, atraindo visitantes durante o ano inteiro.
A vila de Cascais é, desde finais do século XIX, um dos destinos turísticos portugueses mais apreciados por nacionais e estrangeiros.
Uma vez que os visitantes podem desfrutar de um clima ameno, das praias, das paisagens naturais, de uma rica gastronómia.
Eventos culturais e eventos internacionais.
Qualidade de vida e um desfrute pleno para si e toda a família!
Investir em bens tangíveis, como o imobiliário, é uma excelente opção. Invista em Patrimônio!
Para mais informações, entre em contato!
......................................................................................................................................................................................................................................
Detached 6-bedroom villa in Birre|Cascais with pool
Start of construction: August 2024
End of Construction: December: 2025
Land area: 695m2
Layout area: 220m2
Construction area: 300m2
This detached 5-bedroom villa is located in a prime residential area.
Close to Kings Scool International College
Built in a contemporary style with a high standard of quality and finishes.
Comprising two floors, covered parking and garage box, swimming pool and leisure area.
Ground floor with a large open-plan living room with fitted kitchen.
A guest suite and a guest bathroom.
Laundry room, pantry and technical area.
1st floor with a master suite with dressing room, three bedrooms, a bathroom, an openspace, balconies
Located in Birre, just a few minutes from the center of Cascais.
The town of Cascais is located about 30 minutes from Lisbon, next to the seafront, between the sunny bay of Cascais and the majestic Serra de Sintra. It is undoubtedly one of the most beautiful and complete cities in Portugal.
Surrounded by an exquisite atmosphere, it attracts visitors all year round.
Since the end of the 19th century, the town of Cascais has been one of Portugal's most popular tourist destinations for both locals and foreigners.
Visitors can enjoy the mild climate, beaches, natural landscapes and rich gastronomy.
Cultural events and international events.
Quality of life and full enjoyment for you and the whole family!
Investing in tangible assets, such as real estate, is an excellent option. Invest in assets!
For more information, get in touch!